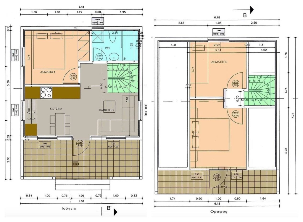
Δυόροφη ξύλινη κατοικία με φινλανδικό τμήμα κορμού
Ισόγειο 32 τ.μ. αποτελείται από 1 ενιαίο χώρο καθιστικό κουζίνα, 1 υπνοδωμάτιο και λουτρόΒεράντα 18 τ.μ.
Όροφος 33 τ.μ. αποτελείται από 2 υπνοδωμάτια Μπαλκόνι 12 τ.μ.
User registration is disabled for demo purpose.
Forgot Password
Please enter your username or email address. You will receive a link to create a new password via email.
Διαχείριση Συγκατάθεσης
Για να παρέχουμε την καλύτερη εμπειρία, χρησιμοποιούμε τεχνολογίες όπως cookies για την αποθήκευση ή/και την πρόσβαση σε πληροφορίες συσκευών. Η συγκατάθεση για τις εν λόγω τεχνολογίες θα μας επιτρέψει να επεξεργαστούμε δεδομένα προσωπικού χαρακτήρα, όπως συμπεριφορά περιήγησης ή μοναδικά αναγνωριστικά σε αυτόν τον ιστότοπο. Η μη συγκατάθεση ή η ανάκληση της συγκατάθεσης, μπορεί να επηρεάσει αρνητικά ορισμένες λειτουργίες και δυνατότητες.
Λειτουργικά
Πάντα ενεργό
Η τεχνική αποθήκευση ή πρόσβαση είναι απολύτως απαραίτητη για τον νόμιμο σκοπό της δυνατότητας χρήσης συγκεκριμένης υπηρεσίας που ζητείται ρητά από τον συνδρομητή ή τον χρήστη ή με αποκλειστικό σκοπό τη μετάδοση επικοινωνίας μέσω δικτύου ηλεκτρονικών επικοινωνιών.
Προτιμήσεις
Η τεχνική αποθήκευση ή πρόσβαση είναι απαραίτητη για τον νόμιμο σκοπό της αποθήκευσης προτιμήσεων που δεν ζητούνται από τον συνδρομητή ή τον χρήστη.
Στατιστικά
Η τεχνική αποθήκευση ή πρόσβαση που χρησιμοποιείται αποκλειστικά για στατιστικούς σκοπούς.Η τεχνική αποθήκευση ή πρόσβαση που χρησιμοποιείται αποκλειστικά για ανώνυμους στατιστικούς σκοπούς. Χωρίς κλήτευση, η εθελοντική συμμόρφωση εκ μέρους του Παρόχου Υπηρεσιών Διαδικτύου ή πρόσθετες καταγραφές από τρίτο μέρος, οι πληροφορίες που αποθηκεύονται ή ανακτώνται για το σκοπό αυτό από μόνες τους δεν μπορούν συνήθως να χρησιμοποιηθούν για την αναγνώρισή σας.
Εμπορικής Προώθησης
Η τεχνική αποθήκευση ή πρόσβαση απαιτείται για τη δημιουργία προφίλ χρηστών, για την αποστολή διαφημίσεων ή για την καταγραφή του χρήστη σε έναν ιστότοπο ή σε διάφορους ιστότοπους για παρόμοιους σκοπούς εμπορικής προώθησης.